Home > Projects - Music Studios > After Now
STUDIO AFTER NOW
A ONE-OF-A-KIND STUDIO IN TOULOUSE COMBINING HIGH TECH AND VINTAGE
Client : After Now Records
Project manager : Red House Acoustics
General contractor : Red House Factory
Location : Toulouse (France)
The After Now studio is home to legendary analog machines, Dolby Atmos systems, modular synthesizers, and legendary compressors.
It's a place that produces sound, of course, but also sculpts it. The sound in the large studio is dense and clear. The walls absorb sound, the carpet vibrates. It quickly becomes clear that everything here is designed for one purpose: to listen and feel.
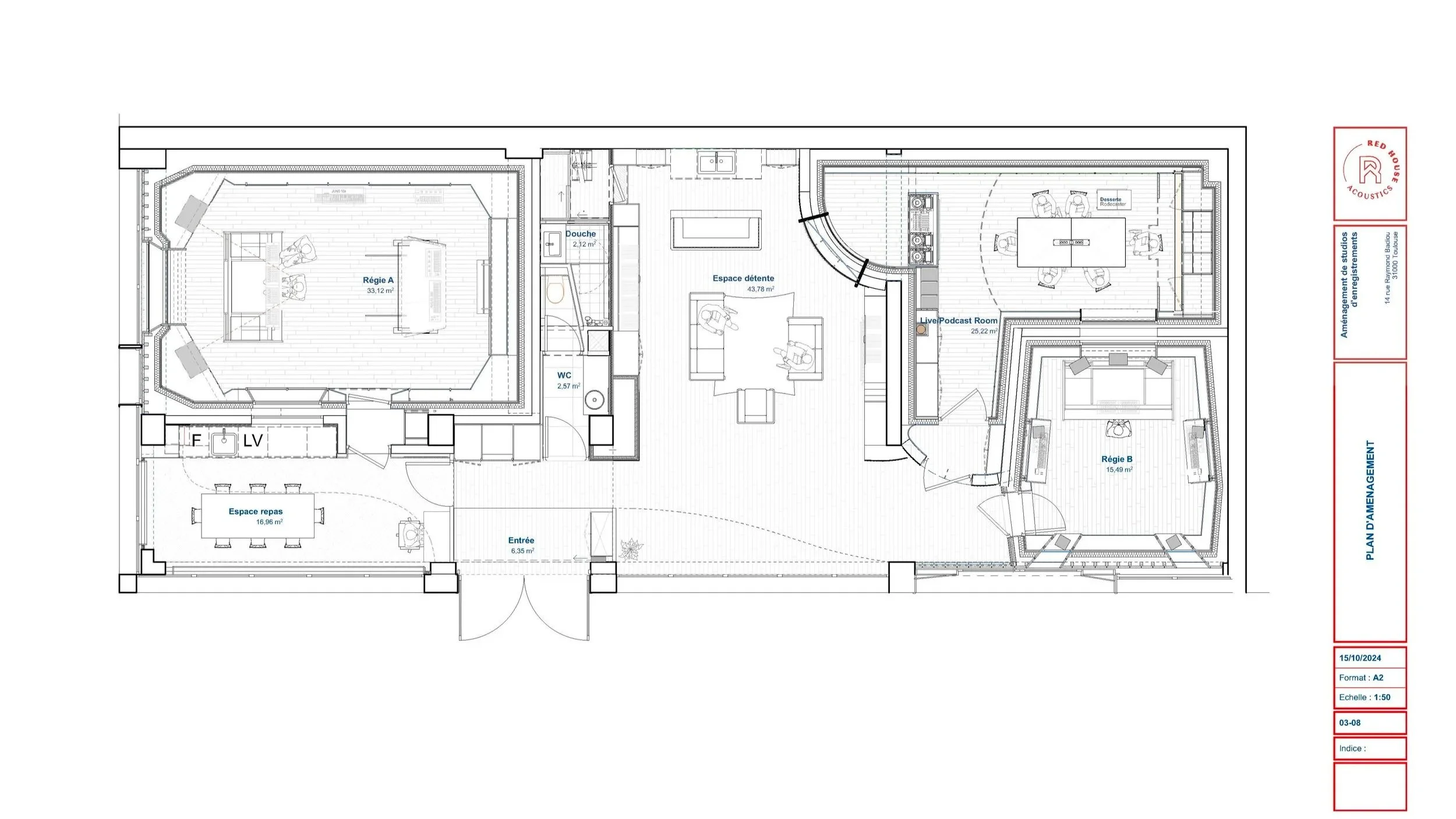
In total, there are four interconnected spaces: a large stereo studio, a multipurpose "live room," a Dolby Atmos studio, and an auditorium that can be converted into a screening or conference room. The entire space is designed to be interactive and mobile.
In this studio dedicated to house music in the broadest sense, the idea is to give artists a unique experience by providing them with historic instruments from the early days of electronic music, combined with the latest creative tools.
“Gilles(After Now): Lucas, I’d like to create the studio of my dreams, but I need some help to make it happen.
Lucas (Red House): I’ll come down to Toulouse as soon as you’ve found some available space. We’ll bring everything we need for the acoustic measurements.
Two months later, together, 200 meters from the Zénith in Toulouse.
L: How do you want to feel when you walk in here?
G: I want to feel welcomed in a warm place, shared by people who are passionate about electronic music. I want people to feel safe and free here. The studio has one goal: to create unique moments around what matters most: sound.
L: OK! So maybe here, you see, we could divide the space into four areas... A lounge here, a large studio over there...
Twelve months of construction later. Studio inauguration.
L: There you go. You wanted it... You got it!
G: Thank you, Red House. You guys are geniuses.”